120 Hectares Of Producing Farmland - Massive Development Potential
Key Information
- Price:
- €25,000,000
- Reference:
- PP7071
- Type:
- Land
- Location:
- Porto, Porto & The Green Coast
- Region:
- Porto & The Green Coast
- Country:
- Portugal (PT)
- Bedrooms:
- n/a
- Bathrooms:
- n/a
- Plot Size:
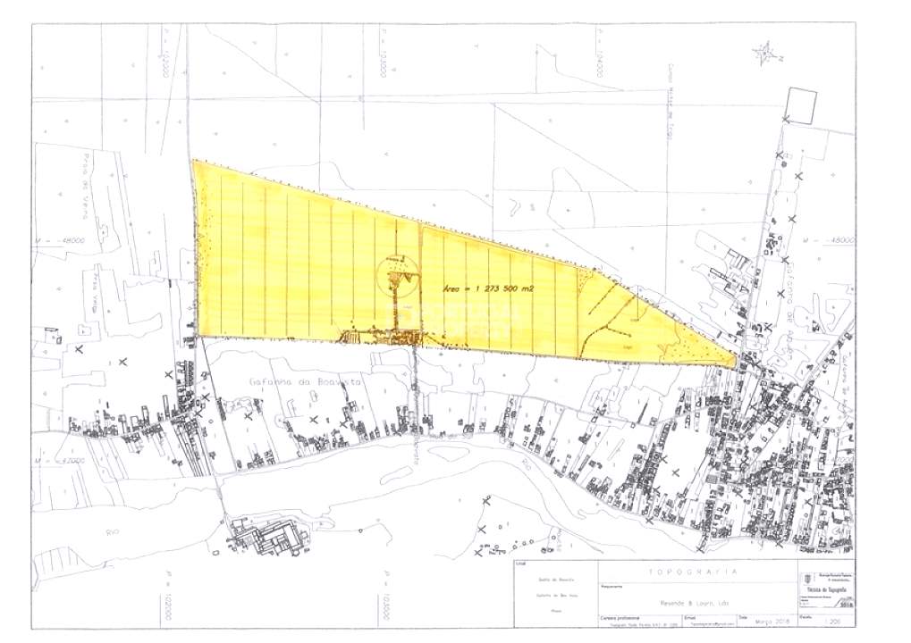
- 1,273,500m2
Description
We are very pleased to share with you this listing that includes over 120 hectares (297 acres) of producing farmland, that also has recreational activities for ecotourism, including fishing.
The land sits above an underground river, so there is an abundance of water surrounding and on the land. Crops are produced year-round, with farming contracts active and renewable. There are natural irrigation canals along each farming bed and multiple buildings on the property used for equipment storage and maintenance, as well as habitation.
Located in the municipality of Aveiro, this unique property offers access to amenities, while providing turnkey income-producing farmland that can be used as it is, or changed into something spectacular.
The demand for golf courses in this area is just one of the many ideas that could materialise here. Construction of luxury residences, a hotel, or an eco-tourism site are on the list of yielding opportunities that can be done here.
Located just 45 minutes south of Porto and a 10-minute drive to downtown Aveiro, this land is truly one-of-a-kind in this region of northern Portugal.
Please enquire with us today to see a comprehensive virtual tour of all the land and book your viewing with us.
Ref: PP7071
Property Features
- Land
- Near bars/restaurants
- Near schools
- Near shops
- Near a golf course
- Near the beach
Why Choose Berkshire Hathaway HomeServices Portugal Property?
When buying real estate in Portugal, one name stands above the rest—Berkshire Hathaway HomeServices Portugal Property (PortugalProperty.com). As part of the Berkshire Hathaway network, owned by Warren Buffett, we are backed by one of the world's most powerful and trusted brands, ranked fourth most admired globally.
With 10 offices across Portugal—spanning the east to west Algarve, Lisbon, Porto, Cascais, Madeira, and the Azores—we offer unmatched local expertise and national coverage.
Our network includes 50,000+ brokers across 1,400+ offices worldwide, ensuring clients benefit from both global reach and deep market insight. In Portugal alone, we have over 100 brokers, equipped with luxury vehicles to personally guide clients to their ideal properties.
Exclusive Access & Full-Service Support
We offer exclusive listings, and if this property isn't the perfect fit, our strategic partnerships with Portugal's top agencies ensure we'll find the right one. From legal guidance and financing to property management, we provide end-to-end service for a seamless buying experience.
A Brand Built on Trust & Results
With Berkshire Hathaway HomeServices, you're choosing a global leader in real estate, known for integrity, strength, and results. Buying a home is one of the most important investments you'll make—partner with a name you can trust.
Your perfect home in Portugal awaits. Let's find it together.
PortugalProperty.com